跳至內容
梅雨季來臨☔浴室最需要「電熱毛巾杆」
梅雨季來臨☔浴室最需要「電熱毛巾杆」

INAX 淋浴花灑組(平台龍頭)|白色

省下 24% 省下 24%
原價 $ 19,900
原價 $ 19,900 - 原價 $ 19,900
原價 $ 19,900
$ 15,200
$ 15,200 - $ 15,200
$ 15,200
庫存:
剩 1 組!
品牌: INAX
SKU: FC5780

配送

限新竹以北。 現貨: 2-3 工作天 / 預購: 2-3 個月

商品介紹

防生鏽、防扭結的出水軟管

鉻鎳鍍層光澤亮麗,歷久彌新,美觀耐用

規格

  • 簡單按鈕控制以節省水和能源
  • 平台龍頭可置放沐浴用品並具有洩水坡度
  • 頭頂花灑:柔和禪修的出水模式提供寧靜的冥想體驗
  • 榮獲 reddot 紅點設計獎
  • 無下出水
  • 平台龍頭&蓮蓬頭為白色,其他部分為亮鉻色(請詳影片)

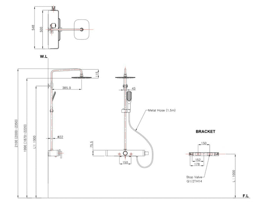
安裝注意:

  1. 冷熱水出口間距15cm (正負誤差2cm內)
  2. 冷熱出水口離地磚完成面高度,需在>=100cm。
  3. 熱水器至少16公升型,最低水壓需求2kg。適切水壓 2.5-3kg/cm,請視情況低樓層調整減壓閥,中高樓層安裝加壓馬達。

▲ 配送地區僅限『新竹以北』;其他地區無法配送,客服會取消訂單恕請見諒。

INAX 運送區域&運費

INAX 面盆&馬桶 配送運費說明:

因面盆&馬桶屬於超重商品,雙北以外縣市需收取運費。

※所有地區,若派送位置無電梯,需從樓梯上樓,樓層搬運費另計。

 

花灑選購說明

※ 您可測量以下圖, A、B、C 的距離,回傳,讓好德協助您評估能否安裝。

 

花灑安裝注意事項:

  1. 水壓要求:2-3kg/cm^2
  2. 離地面距離,需在100-110cm,因為花灑杆的杆長是固定的,離地面距離太低,花灑會不夠高。
  3. 各品牌龍頭 Ⓐ 中心距離 稍有不同,請參考以下數據:
    • Grohe 15cm ±1.5cm (13.5cm-16.5cm)
    • Hansgrohe 15cm ±1.2cm (13.8cm-16.2cm)

※若您選擇的是 Hansgrohe 的花灑龍頭,中心距離超過15cm ±1.2cm這個範圍,可加購原廠延伸蛙角,可增加容差到±3cm

      

 

聯絡好德

不知道怎麼搭配產品?跟好德聊聊吧~